Abbattere muretto box auto
Abbattere muretto box auto
Salve, vorrei un consiglio, da poco ho acquistato un box auto e vorrei sistemarlo con pitturazione, aggiunta di qualche presa e punto luce in più, e qualche scaffalatura.
Però in primis vorrei risolvere un "problema": nella parte finale del box, prima della parete c'è un muretto alto una 40ina di cm e distante dal muro una 50ina di cm.
Sinceramente non capisco l'utilità di questo muretto, non serve a nulla e mi occupa spazio non permettendomi di metterci nulla, uno scaffale, un banco da lavoro, ecc.
Vorrei abbatterlo in modo da avere un po di spazio in più nel box, però vorrei un consiglio da qualche esperto più di me, se la cosa è fattibile. Da profano, non mi sembra un muro portante ed indispensabile alla struttura, anche se nella piantina del catasto risulta. (che utilità avrà?)
Grazie per i Vs consigli
Però in primis vorrei risolvere un "problema": nella parte finale del box, prima della parete c'è un muretto alto una 40ina di cm e distante dal muro una 50ina di cm.
Sinceramente non capisco l'utilità di questo muretto, non serve a nulla e mi occupa spazio non permettendomi di metterci nulla, uno scaffale, un banco da lavoro, ecc.
Vorrei abbatterlo in modo da avere un po di spazio in più nel box, però vorrei un consiglio da qualche esperto più di me, se la cosa è fattibile. Da profano, non mi sembra un muro portante ed indispensabile alla struttura, anche se nella piantina del catasto risulta. (che utilità avrà?)
Grazie per i Vs consigli
- Allegati
-
- box2.jpg (49.76 KiB) Visto 2885 volte
-
- box3.jpg (32.51 KiB) Visto 2885 volte
Re: Abbattere muretto box auto
L'unica cosa che mi viene in mente è che quel muretto ce l'abbiano fatto per fermare l'acqua che quando piove tanto e forte allagava il garage. Se fosse così, a rigor di logica ci dovrebbero aver fatto anche una canalizzazione per convogliare l'acqua fuori dal garage. Quindi, se è per quello, aspetta ad abbatterlo.... magari un domani ti può far comodo.
Nessuna buona azione resta impunita
Clare Boothe Luce
Clare Boothe Luce
- Capitan Farloc
- Site Admin
- Messaggi: 9648
- Iscritto il: gio 29 dic 2005 10:58 pm
- Località: Roma
Re: Abbattere muretto box auto
Quel muretto è in tutti i box?
Ed è così basso anche per gli altri?
Ed è così basso anche per gli altri?
Luciano
Re: Abbattere muretto box auto
Il box è di nuova costruzione ed io sono stato il primo proprietario, quindi è stato costruito già con quel muretto;
Sono al piano - 2 , sul soffitto non vedo neussna canalizzazione per convogliare acqua, anzi quando piove forte c'è il rischio che l'acqua da fuori possa venire dentro in base al alcune pendenze non tanto fatte ad hoc.
Inoltre questo muretto non ce l'hanno tutti i box, ma solo alcuni, chi. sta al mio fianco, ad esempio, non ce l'ha....
Sono al piano - 2 , sul soffitto non vedo neussna canalizzazione per convogliare acqua, anzi quando piove forte c'è il rischio che l'acqua da fuori possa venire dentro in base al alcune pendenze non tanto fatte ad hoc.
Inoltre questo muretto non ce l'hanno tutti i box, ma solo alcuni, chi. sta al mio fianco, ad esempio, non ce l'ha....
- Capitan Farloc
- Site Admin
- Messaggi: 9648
- Iscritto il: gio 29 dic 2005 10:58 pm
- Località: Roma
Re: Abbattere muretto box auto
Quello che non ce l'ha, ha la parete in fondo di cemento?
Faccio queste domande perchè sembra come se, per fare i box più grandi, si sia voluto includere anche l'intercapedine.
In questo caso quello disegnato sulla piantina catastale, non sarebbe un muretto basso ma dovrebbe arrivare fino al soffitto.
Faccio queste domande perchè sembra come se, per fare i box più grandi, si sia voluto includere anche l'intercapedine.
In questo caso quello disegnato sulla piantina catastale, non sarebbe un muretto basso ma dovrebbe arrivare fino al soffitto.
Luciano
- °°Giacomo°°
- Messaggi: 1296
- Iscritto il: dom 27 apr 2008 8:32 pm
Re: Abbattere muretto box auto
concordo con il capitano, anche secondo me quella doveva essere una intercapedine, così come risulta dalla planimetria catastale che hai allegato.
in alcuni comuni le intercapedini sono obbligatorie per le murature controterra quindi questo potrebbe essere stato un fantasioso escamotage per aggirare tale norma, ma non sapendo nulla a riguardo è solo una mia ipotesi
in alcuni comuni le intercapedini sono obbligatorie per le murature controterra quindi questo potrebbe essere stato un fantasioso escamotage per aggirare tale norma, ma non sapendo nulla a riguardo è solo una mia ipotesi
Re: Abbattere muretto box auto
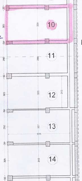
Quindi, grazie alle Vs delucidazioni incomincia a "quadrare il cerchio", ovvero facendo mente locale, se non ricordo male, chi non ha quel muretto ha la parete in mattoni, inoltre la piantina che mi fu proposta in fase preliminare non prevedeva il fatidico muretto per via dell'intercapedine (il mio è il nr. 10 dell'allegato ) . Poi, non so se per me è una cosa positiva, ma hanno concluso i lavori non alzando il muretto. Ora come ora, abbattendolo di mia iniziativa, tenuto conto che non ha nessuna utilità adesso (almeno penso), qualcuno potrebbe contestarmelo? Voi cosa avreste fatto al posto Mio.
Grazie per i Vs preziosi consigli
Grazie per i Vs preziosi consigli
- Allegati
-
- di-default-2020-02-04-alle-18.46.31.jpg (16.13 KiB) Visto 2854 volte
- Capitan Farloc
- Site Admin
- Messaggi: 9648
- Iscritto il: gio 29 dic 2005 10:58 pm
- Località: Roma
Re: Abbattere muretto box auto
Quindi immagino che quello spazio non sia comunicante ai lati con gli altri box, come era nella seconda piantina che hai mostrato, ma sarà stato chiuso.
Secondo me devi controllare cosa succede dopo una forte pioggia... se il muro trasuda acqua, la cosa si complica.
Tieni conto che l'intercapedine, per essere efficace, dovrebbe essere come nel secondo disegno che hai mostrato, e dovrebbe avere anche delle grate verso l'esterno in modo da poter far andare via l'umidità.
Se lateralmente è stata chiusa, non ha più molto senso.
Secondo me devi controllare cosa succede dopo una forte pioggia... se il muro trasuda acqua, la cosa si complica.
Tieni conto che l'intercapedine, per essere efficace, dovrebbe essere come nel secondo disegno che hai mostrato, e dovrebbe avere anche delle grate verso l'esterno in modo da poter far andare via l'umidità.
Se lateralmente è stata chiusa, non ha più molto senso.
Luciano
- °°Giacomo°°
- Messaggi: 1296
- Iscritto il: dom 27 apr 2008 8:32 pm
Re: Abbattere muretto box auto
già allo stato attuale sei in difetto, cioè lo stato di fatto non corrisponde alla planimetria catastale (che è un documento ufficiale) sempre che quest'ultima corrisponda al grafico che hai allegato
se hai modo di farlo, controlla
controlla bene di non aver umidità nella muratura a monte, perchè se così fosse, inutile lasciarla a vista, tanto vale completare l'intercapedine.
per eliminare tale muretto se vuoi fare le cose secondo la legge, dovresti chiamare un tecnico che ti aggiornerà la planimetria tramite pratica docfa.
altrimenti lo dovrai fare se un domani vorrai vendere o cedere l'immobile a terzi
se hai modo di farlo, controlla
controlla bene di non aver umidità nella muratura a monte, perchè se così fosse, inutile lasciarla a vista, tanto vale completare l'intercapedine.
per eliminare tale muretto se vuoi fare le cose secondo la legge, dovresti chiamare un tecnico che ti aggiornerà la planimetria tramite pratica docfa.
altrimenti lo dovrai fare se un domani vorrai vendere o cedere l'immobile a terzi
Re: Abbattere muretto box auto
Si in effetti non ho spazi comunicanti con altri box, sarà stato chiuso.
Ci sono state grosse piogge, ma non è successo nulla.
Effettivamente, visto le cose come stanno, già il costruttore mi ha venduto il box non a norma e non corrispondente alla planimetria.
Quindi a questo punto, visto che per il momento e per il futuro non ho intenzione di cederlo e/o venderlo a terzi, potrei abbattere il muretto e guadagnare spazio per uno scaffale ed altro, la mia preoccupazione, come già accennato all'inizio del post, è il timore casomai quel muro fosse di utilità o sostegno di qualche parete adiacente , oppure portante.
Ma se non ha nessuna efficacia, visto che non fungere neanche da intercapedine, visto come è stato progettato, posso eliminarlo in tutta tranquillità e senza causare rischio alle strutture adiacenti.
Grazie
Ci sono state grosse piogge, ma non è successo nulla.
Effettivamente, visto le cose come stanno, già il costruttore mi ha venduto il box non a norma e non corrispondente alla planimetria.
Quindi a questo punto, visto che per il momento e per il futuro non ho intenzione di cederlo e/o venderlo a terzi, potrei abbattere il muretto e guadagnare spazio per uno scaffale ed altro, la mia preoccupazione, come già accennato all'inizio del post, è il timore casomai quel muro fosse di utilità o sostegno di qualche parete adiacente , oppure portante.
Ma se non ha nessuna efficacia, visto che non fungere neanche da intercapedine, visto come è stato progettato, posso eliminarlo in tutta tranquillità e senza causare rischio alle strutture adiacenti.
Grazie