Realizzazione Cabina Angolare
Realizzazione Cabina Angolare
Vorrei adibire una stanza di mt. 4,25 x 2,20 a cabina armadio angolare. Sto cercando di progettarla con non poche difficoltà. Vorrei realizzarla in listellare impelliciato tanganika con l'uso di perni e barilotti.
Ecco alcune domande:
1. Qualcuna ha qualche progetto in virtù delle dimensioni soprattutto nella realizzazione della parte angolare che la vorrei piuttosto ampia in modo da poterla utilizzarecome spogliatoio;
2. Il cappello di tutta la struttura va poggiato sulle fiancate o va incastratto tra le varie fiancate (penso che vada poggiato sulle fiancate);
3. Quale tipo e misure di perni e barilotti usare in considerazione che ho intenzione di acquistare un listellare dello spessore di 25 mm (in considerazione dello spessore avevo pensato di usare i barilotti da 16 mm con perni da 10 mm);
4. Esistono delle dime(anche autocostruite) per la foratura precisa?
Ringrazio anticipatamente chi saprà aiutarmi. Un saluto a tutti
Ecco alcune domande:
1. Qualcuna ha qualche progetto in virtù delle dimensioni soprattutto nella realizzazione della parte angolare che la vorrei piuttosto ampia in modo da poterla utilizzarecome spogliatoio;
2. Il cappello di tutta la struttura va poggiato sulle fiancate o va incastratto tra le varie fiancate (penso che vada poggiato sulle fiancate);
3. Quale tipo e misure di perni e barilotti usare in considerazione che ho intenzione di acquistare un listellare dello spessore di 25 mm (in considerazione dello spessore avevo pensato di usare i barilotti da 16 mm con perni da 10 mm);
4. Esistono delle dime(anche autocostruite) per la foratura precisa?
Ringrazio anticipatamente chi saprà aiutarmi. Un saluto a tutti
- mariobrossh
- Moderator Maximo
- Messaggi: 17225
- Iscritto il: lun 17 ago 2009 9:11 am
- Località: Cosenza
Re: Realizzazione Cabina Angolare
posta le misure della stanza (compreso eventuali porte o finestre nei pressi dell'armadio e vediamo di farne unonivizzi ha scritto:Ecco alcune domande:
1. Qualcuna ha qualche progetto in virtù delle dimensioni soprattutto nella realizzazione della parte angolare che la vorrei piuttosto ampia in modo da poterla utilizzarecome spogliatoio;
su misura
no di solito il cappello va incastrato tra le fiancate in modo da non vedere le giunzioni2. Il cappello di tutta la struttura va poggiato sulle fiancate o va incastratto tra le varie fiancate (penso che vada poggiato sulle fiancate);
perfetto3. Quale tipo e misure di perni e barilotti usare in considerazione che ho intenzione di acquistare un listellare dello spessore di 25 mm (in considerazione dello spessore avevo pensato di usare i barilotti da 16 mm con perni da 10 mm);
ammesso che ci siano per un solo lavoro non vale la pena comprarle, intanto prova a dare un'occhiata a4. Esistono delle dime(anche autocostruite) per la foratura precisa?
Ringrazio anticipatamente chi saprà aiutarmi. Un saluto a tutti
questa guida e se ci sono dubbi chiedi pure, con un po di precisione non è difficile montarli
Condividere un'idea è sempre una buona idea 
Re: Realizzazione Cabina Angolare
Ti ringrazio per la risposta. Volevo solo fare qualche precisazione:
1. hai detto che il cappello e la base vanno dentro le fiancate ..... non pensi che sia più resistente se le fiancate si trovino tra il cappello e la base, visto che la parte superiore dovrei sfruttarla per poggiare contenitori con lenzuola e piumoni? Inoltre facendo poggiare il cappello su più fiancate avrei un risparmio non indifferente di fiancate e quindi di tavole, e magari nel punto in cui comincia un nuovo cappello sistemare una nuova fiancata che vada ad accoppiarsi con l'ultima del precedente cappello.
2. A riguardo l'angolo spogliatoio, la mia idea era quella di realizzarlo più grande in modo da utilizzarlo come spogliatoio e dare alla camera la sensazione di ordine, creando successivamente delle ante a battente che vadano a chiudere l'angolo. Cosa ne pensi?
3. A riguardo i barilotti con quale sistema fori le parti? Prendendo in maniera impeccabile le misure?
Scusami per le molteplici e forse banali domande che ti pongo, ma sono un hobbista che ha il piacere e, quindi, la soddisfazione di realizzare qualcosa che forse va oltre la mia discreta esperienza nel settore. Se non si prova non si può dire di non essere capaci. Sei d'accordo? Il mio lavoro principale non ha nulla che fare con quest'hobby, essendo un Sottufficiale Infermiere dell'Aeronautica, peraltro prossimo alla pensione. Un saluto a tutti gli amici del Forum
1. hai detto che il cappello e la base vanno dentro le fiancate ..... non pensi che sia più resistente se le fiancate si trovino tra il cappello e la base, visto che la parte superiore dovrei sfruttarla per poggiare contenitori con lenzuola e piumoni? Inoltre facendo poggiare il cappello su più fiancate avrei un risparmio non indifferente di fiancate e quindi di tavole, e magari nel punto in cui comincia un nuovo cappello sistemare una nuova fiancata che vada ad accoppiarsi con l'ultima del precedente cappello.
2. A riguardo l'angolo spogliatoio, la mia idea era quella di realizzarlo più grande in modo da utilizzarlo come spogliatoio e dare alla camera la sensazione di ordine, creando successivamente delle ante a battente che vadano a chiudere l'angolo. Cosa ne pensi?
3. A riguardo i barilotti con quale sistema fori le parti? Prendendo in maniera impeccabile le misure?
Scusami per le molteplici e forse banali domande che ti pongo, ma sono un hobbista che ha il piacere e, quindi, la soddisfazione di realizzare qualcosa che forse va oltre la mia discreta esperienza nel settore. Se non si prova non si può dire di non essere capaci. Sei d'accordo? Il mio lavoro principale non ha nulla che fare con quest'hobby, essendo un Sottufficiale Infermiere dell'Aeronautica, peraltro prossimo alla pensione. Un saluto a tutti gli amici del Forum
- Allegati
-
- piantina cabina.png (6.32 KiB) Visto 3297 volte
Re: Realizzazione Cabina Angolare
Caro Mario, sono sempre io.
A riguardo dei perni e dei barilotti volevo farti qualche domanda:
1. Che diametro deve avere la punta con cui devo forare la sede del barilotto da 16 mm e a che profondità e a che distanza dal bordo;
2. A riguardo il perno da 10 mm , le lunghezze variano o sono standard? Che diametro deve avere la punta con cui devo forare? il foro che si collega con il barilotto che profondità deve avere?
Grazie e scusami per le ulteriori domande
A riguardo dei perni e dei barilotti volevo farti qualche domanda:
1. Che diametro deve avere la punta con cui devo forare la sede del barilotto da 16 mm e a che profondità e a che distanza dal bordo;
2. A riguardo il perno da 10 mm , le lunghezze variano o sono standard? Che diametro deve avere la punta con cui devo forare? il foro che si collega con il barilotto che profondità deve avere?
Grazie e scusami per le ulteriori domande
- mariobrossh
- Moderator Maximo
- Messaggi: 17225
- Iscritto il: lun 17 ago 2009 9:11 am
- Località: Cosenza
Re: Realizzazione Cabina Angolare
Guardando la piantina mi è venuto in mente che forse potresti fare una vera e propria cabina armadio in fondo alla
parete come da disegno, in questo modo dovresti realizzare solo la parete divisoria che potresti fare in cartongesso
con porta scorrevole con maggior libertà di movimento e di arredamento della stessa e forse anche con costi inferiori,
ma è solo una mia ipotesi se non ti piace andiamo avanti.

Torniamo a noi, sulla piantina non si evince dove andrebbe l'armadio e le sue misure
se viene montato sul posto ecc. comunque se ci sono più montanti allora di solito le due fiancate estreme si fanno
esterne mentre gli altri montanti interni.
e qui ritorniamo all'idea della cabina armadio perché un armadio normale più di 60 cm di profondità diventa una cosa anche difficile da realizzare e montare ed in 60 cm più gli abiti appesi non credo ti ci possa muovere agevolmente ma
una volta stabilite le misure se ne può parlare, per chiudere l'angolo occorrono due ante con chiusura a libro e relativa
ferramenta.
se i fori da fare sono tanti allora mi autocostruisco una dima altrimenti vado di riga e matita

parete come da disegno, in questo modo dovresti realizzare solo la parete divisoria che potresti fare in cartongesso
con porta scorrevole con maggior libertà di movimento e di arredamento della stessa e forse anche con costi inferiori,
ma è solo una mia ipotesi se non ti piace andiamo avanti.

Torniamo a noi, sulla piantina non si evince dove andrebbe l'armadio e le sue misure
ci sono varie scuole di pensiero dipende da molti fattori, ad esempio se l'armadio deve essere smontato e trasportato o1. hai detto che il cappello e la base vanno dentro le fiancate ..... non pensi che sia più resistente se le fiancate si trovino tra il cappello e la base, visto che la parte superiore dovrei sfruttarla per poggiare contenitori con lenzuola e piumoni? Inoltre facendo poggiare il cappello su più fiancate avrei un risparmio non indifferente di fiancate e quindi di tavole, e magari nel punto in cui comincia un nuovo cappello sistemare una nuova fiancata che vada ad accoppiarsi con l'ultima del precedente cappello.
se viene montato sul posto ecc. comunque se ci sono più montanti allora di solito le due fiancate estreme si fanno
esterne mentre gli altri montanti interni.
2. A riguardo l'angolo spogliatoio, la mia idea era quella di realizzarlo più grande in modo da utilizzarlo come spogliatoio e dare alla camera la sensazione di ordine, creando successivamente delle ante a battente che vadano a chiudere l'angolo. Cosa ne pensi?
e qui ritorniamo all'idea della cabina armadio perché un armadio normale più di 60 cm di profondità diventa una cosa anche difficile da realizzare e montare ed in 60 cm più gli abiti appesi non credo ti ci possa muovere agevolmente ma
una volta stabilite le misure se ne può parlare, per chiudere l'angolo occorrono due ante con chiusura a libro e relativa
ferramenta.
Quando devo utilizzare ferramenta che non conosco, prendo i kit e faccio delle prove su pezzi di scarto quindiA riguardo i barilotti con quale sistema fori le parti? Prendendo in maniera impeccabile le misure?
se i fori da fare sono tanti allora mi autocostruisco una dima altrimenti vado di riga e matita
Non c'è nulla di cui scusarsi, siamo qui apposta, con me poi sfondi una porta... anzi un portone apertoScusami per le molteplici e forse banali domande che ti pongo, ma sono un hobbista che ha il piacere e, quindi, la soddisfazione di realizzare qualcosa che forse va oltre la mia discreta esperienza nel settore. Se non si prova non si può dire di non essere capaci. Sei d'accordo? Il mio lavoro principale non ha nulla che fare con quest'hobby, essendo un Sottufficiale Infermiere dell'Aeronautica, peraltro prossimo alla pensione. Un saluto a tutti gli amici del Forum
Condividere un'idea è sempre una buona idea 
- mariobrossh
- Moderator Maximo
- Messaggi: 17225
- Iscritto il: lun 17 ago 2009 9:11 am
- Località: Cosenza
Re: Realizzazione Cabina Angolare
quelle misure lì non le ho mai usate ma una volta comprati i kit troveremo tutte le misure che servononivizzi ha scritto:Caro Mario, sono sempre io.
A riguardo dei perni e dei barilotti volevo farti qualche domanda:
1. Che diametro deve avere la punta con cui devo forare la sede del barilotto da 16 mm e a che profondità e a che distanza dal bordo;
2. A riguardo il perno da 10 mm , le lunghezze variano o sono standard? Che diametro deve avere la punta con cui devo forare? il foro che si collega con il barilotto che profondità deve avere?
Grazie e scusami per le ulteriori domande
p.s. se non ce l'hai già procurati un calibro, anche economico
Condividere un'idea è sempre una buona idea 
Re: Realizzazione Cabina Angolare
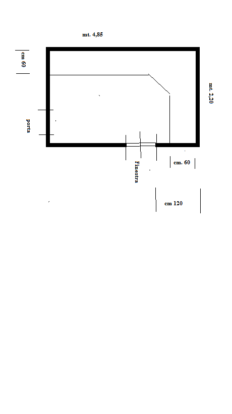
Buongiorno e grazie per la risposta.
Volevo innanzitutto precisare che in considerazione delle misure della cabina armadio e del locale in cui deve essere sistemata, non posso che montarla solo in loco. Questa era la mia idea in piantina di come vorrei realizzarla. La parte spogliatoio dovrebbe essere quella ad angolo sulla quale sistemerei due ante o a battente o a libro Chiedo scusa per la scarsa qualità del disegno in quanto non sono molto pratico in informatica,
Volevo innanzitutto precisare che in considerazione delle misure della cabina armadio e del locale in cui deve essere sistemata, non posso che montarla solo in loco. Questa era la mia idea in piantina di come vorrei realizzarla. La parte spogliatoio dovrebbe essere quella ad angolo sulla quale sistemerei due ante o a battente o a libro Chiedo scusa per la scarsa qualità del disegno in quanto non sono molto pratico in informatica,
- mariobrossh
- Moderator Maximo
- Messaggi: 17225
- Iscritto il: lun 17 ago 2009 9:11 am
- Località: Cosenza
Re: Realizzazione Cabina Angolare
il disegno non si vede e siccome di angoli sfruttabili ce ne sono almeno tre non saprei come procedere
inoltre dovresti fornire le misure dell'armadio A X L X P
inoltre dovresti fornire le misure dell'armadio A X L X P
Condividere un'idea è sempre una buona idea 
Re: Realizzazione Cabina Angolare
Spero che ora sia riuscito ad inviarla
- Allegati
-
- piantina cabina.png (7.54 KiB) Visto 3283 volte
- mariobrossh
- Moderator Maximo
- Messaggi: 17225
- Iscritto il: lun 17 ago 2009 9:11 am
- Località: Cosenza
Re: Realizzazione Cabina Angolare
adesso si vede provo a farti un disegno 
Condividere un'idea è sempre una buona idea 
Re: Realizzazione Cabina Angolare
Ti ringrazio anticipatamente. Ciao Nicola
- mariobrossh
- Moderator Maximo
- Messaggi: 17225
- Iscritto il: lun 17 ago 2009 9:11 am
- Località: Cosenza
Re: Realizzazione Cabina Angolare
questo è un disegno di massima della composizione, secondo il mio modestissimo parere, ovviamente ci possono
essere delle variazioni in più o in meno ma per esperienza diretta è sconsigliabile fare le aperture più piccole di
80 cm, poi bisognerà affrontare la questione dello stile se rialzato da terra o meno se ad anta unica in altezza o
in due pezzi

essere delle variazioni in più o in meno ma per esperienza diretta è sconsigliabile fare le aperture più piccole di
80 cm, poi bisognerà affrontare la questione dello stile se rialzato da terra o meno se ad anta unica in altezza o
in due pezzi

Condividere un'idea è sempre una buona idea 
Re: Realizzazione Cabina Angolare
Grandissimo Mario, sei un grande. Con quale programma lo hai realizzato in tempi così brevi?
A questo punto voglio approfittare di te con qualche altra domanda per sapere i tuoi punti di vista:
1. Le varie fiancate le faresti arrivare fino al soffitto o fino ad una certa altezza (cm. 260 - 270)?
". Se decido di fermarmi ad una determinata altezza. nella zona della parte angolare dovrei obbligatoriamente realizzare la doppia fiancata per poter poggiare il cappello della parte angolare. Ho visto che proprio all'angolo (sul muro) hai sistemato una fiancata..... sicuramente come base di appoggio per il cappello angolare. Giusto?
3. La distanza massima tra una fiancata e l'altra di quanto può essere? Ad esempio vorrei inserirci una cassettiera che, non essendo in grado di realizzare , vorrei acquistarla già fatta e magari non verniciata dello stesso materiale della struttura, in modo che che la vernicerei dello stesso colore ( impregnante, turapori e due mani di vernice trasparente non lucida della sayerlac). Penso che si vendono cassettiere nelle varie misure da inserirci? E' chiaro quindi che devo anche valutare le misura delle cassettiere presenti sul mercato. Giusto?
4. La struttura la poggeresti direttamente a terra o la solleveresti con dei piedini (magari regolabili) ?
Considera che la parte posteriore della cabina la vorrei lasciare libera per la traspirazione, avendo anche intenzione di ricoprire il muro con della carta da parati che la mia comandante(mia moglie) ha già acquistato. Ciao Mario .... grazie
A questo punto voglio approfittare di te con qualche altra domanda per sapere i tuoi punti di vista:
1. Le varie fiancate le faresti arrivare fino al soffitto o fino ad una certa altezza (cm. 260 - 270)?
". Se decido di fermarmi ad una determinata altezza. nella zona della parte angolare dovrei obbligatoriamente realizzare la doppia fiancata per poter poggiare il cappello della parte angolare. Ho visto che proprio all'angolo (sul muro) hai sistemato una fiancata..... sicuramente come base di appoggio per il cappello angolare. Giusto?
3. La distanza massima tra una fiancata e l'altra di quanto può essere? Ad esempio vorrei inserirci una cassettiera che, non essendo in grado di realizzare , vorrei acquistarla già fatta e magari non verniciata dello stesso materiale della struttura, in modo che che la vernicerei dello stesso colore ( impregnante, turapori e due mani di vernice trasparente non lucida della sayerlac). Penso che si vendono cassettiere nelle varie misure da inserirci? E' chiaro quindi che devo anche valutare le misura delle cassettiere presenti sul mercato. Giusto?
4. La struttura la poggeresti direttamente a terra o la solleveresti con dei piedini (magari regolabili) ?
Considera che la parte posteriore della cabina la vorrei lasciare libera per la traspirazione, avendo anche intenzione di ricoprire il muro con della carta da parati che la mia comandante(mia moglie) ha già acquistato. Ciao Mario .... grazie
- mariobrossh
- Moderator Maximo
- Messaggi: 17225
- Iscritto il: lun 17 ago 2009 9:11 am
- Località: Cosenza
Re: Realizzazione Cabina Angolare
uso google sketchupnivizzi ha scritto:Grandissimo Mario, sei un grande. Con quale programma lo hai realizzato in tempi così brevi?
No non supererei i 250 / 260 cm anche perché se arrivi fino al soffitto come lo fissi il cappello ? quella bestia diA questo punto voglio approfittare di te con qualche altra domanda per sapere i tuoi punti di vista:
1. Le varie fiancate le faresti arrivare fino al soffitto o fino ad una certa altezza (cm. 260 - 270)?
". Se decido di fermarmi ad una determinata altezza. nella zona della parte angolare dovrei obbligatoriamente realizzare la doppia fiancata per poter poggiare il cappello della parte angolare.
armadio lo puoi montare solo in piedi, ma questi sono dettagli costruttivi che si vedranno in seguito
Giusto, ma anche per infilare i fondiHo visto che proprio all'angolo (sul muro) hai sistemato una fiancata..... sicuramente come base di appoggio per il cappello angolare. Giusto?
non c'è una distanza massima standard però io per una serie di motivi non supererei i 90 cm, a questo punto però3. La distanza massima tra una fiancata e l'altra di quanto può essere? Ad esempio vorrei inserirci una cassettiera che, non essendo in grado di realizzare , vorrei acquistarla già fatta e magari non verniciata dello stesso materiale della struttura, in modo che che la vernicerei dello stesso colore ( impregnante, turapori e due mani di vernice trasparente non lucida della sayerlac). Penso che si vendono cassettiere nelle varie misure da inserirci? E' chiaro quindi che devo anche valutare le misura delle cassettiere presenti sul mercato. Giusto?
ti consiglio di comprare prima la cassettiera
se l'estetica finale non è un problema nel senso che dovrà avere un aspetto semplice e lineare almeno uno zoccolino4. La struttura la poggeresti direttamente a terra o la solleveresti con dei piedini (magari regolabili) ?
Considera che la parte posteriore della cabina la vorrei lasciare libera per la traspirazione, avendo anche intenzione di ricoprire il muro con della carta da parati che la mia comandante(mia moglie) ha già acquistato. Ciao Mario .... grazie
o telaio di almeno 5 cm lo metterei, la parte posteriore io non la lascerei affatto libera, primo perché l'armadio
perderebbe di rigidità e solidità secondo per una questione igienica............ tarme, ragni ecc.
Condividere un'idea è sempre una buona idea 
Re: Realizzazione Cabina Angolare
Quindi mi consigli di metterci i fondi e lasciar perdere la carta da parati.
A riguardo telaio o zoccolino che se decido di metterlo lo giunterei solo con delle spine (giusto) , io opterei per lo zoccolino che solleverebbe la struttura un pò da terra evitando cosi che anche l'acqua di lavaggio pavimenti con il tempo non la deteriori? Che dici? E la soluzione dei piedini regolabili come la vedi ? Non pensi che potrebbero compensare eventuali dislivelli del pavimento anche se non penso che ce ne siano visto che è tutto parket?
A riguardo sketchup sto andando ora a riprovare ad utilizzarlo. Ho provato più di una volta anche vedendo il tutorial, ma ho sempre rinunciato perchè mi sembrava troppo difficile. Ora ci voglio riprovare.
Per la cassettiera mi conviene farmela realizzare dal falegname o conosci qualche sito dove acquistarla rustica o impellicciata senza alcuna vernice?
Ti ringrazio per la disponibilità ai suggerimenti. Se ti trovi dalle parti di Bari, anche con la famiglia sono a tua disposizione. Ciao Nicola
A riguardo telaio o zoccolino che se decido di metterlo lo giunterei solo con delle spine (giusto) , io opterei per lo zoccolino che solleverebbe la struttura un pò da terra evitando cosi che anche l'acqua di lavaggio pavimenti con il tempo non la deteriori? Che dici? E la soluzione dei piedini regolabili come la vedi ? Non pensi che potrebbero compensare eventuali dislivelli del pavimento anche se non penso che ce ne siano visto che è tutto parket?
A riguardo sketchup sto andando ora a riprovare ad utilizzarlo. Ho provato più di una volta anche vedendo il tutorial, ma ho sempre rinunciato perchè mi sembrava troppo difficile. Ora ci voglio riprovare.
Per la cassettiera mi conviene farmela realizzare dal falegname o conosci qualche sito dove acquistarla rustica o impellicciata senza alcuna vernice?
Ti ringrazio per la disponibilità ai suggerimenti. Se ti trovi dalle parti di Bari, anche con la famiglia sono a tua disposizione. Ciao Nicola